花瓶柱也称拦河柱,大量应用在建筑室外及室内装饰上,其作用不仅是用于装饰,更重要作用是起护栏保护的作用,在楼梯、阳台、楼顶高处用花瓶柱沿着悬空处围成一个封闭的空间,防止来到此处的人坠落,保护人的安全。图1为一旋转楼梯的花瓶柱。
图1
本文依据几款式花瓶柱来计算花瓶柱的出材率(损耗率)。花瓶柱与实心柱一样通常也是由柱座、柱身、柱头部份构成,从图2与图3可以看出来。柱头、柱座与柱身一块加工,也可以分开加工。依据柱座、柱头与柱身的尺寸而定。当柱头、柱座尺寸大于柱身20mm以上时,加工数量较多时,出于出材率考虑,将柱座、柱头与柱身分开考虑加工。如果柱座、柱头、柱身直径相差不大时,柱座、柱头与柱身就一块加工。花瓶柱的尺寸构成是很重要。通过尺寸判断花瓶柱的大小,是圆形花瓶柱、还是方形花瓶柱,或者是柱身是圆形的花瓶柱,柱座、柱头则是方形的花瓶柱。花瓶柱的尺寸构成是计算花瓶柱的出材率(损耗率)的重要因素。图2、图3花瓶柱上标注了很多的尺寸,一些尺寸是用于开料的,一些尺寸是用于花瓶柱造型的。
花瓶柱出材率计算(损耗率)要考虑的因素柱座、柱头与柱身的直径或尺寸差。当三者的尺寸差较大时,就要考虑与柱身分开加工。相差较小就合在一块加工;考虑花瓶柱的安全性。图2与图3柱头部份圆球与圆球下部份的方块连接处因为直径过细,加工时可以考虑与方块分开加工,然后用钢筋加固粘接;当柱座、柱头、柱身分开加工时,同种材料要注意颜色、纹理的基本一致。花瓶柱出材率(损耗率)计算的方法采用体积计算方法,用花瓶柱的总体积除以消耗的花瓶柱的坯料的总体积即得到花瓶柱的出材率。用P表示=花瓶柱的总体积V/消耗的坯料总体积*100%,花瓶柱的损耗率=1-P。花瓶柱依据所安装的场合而定选料。酒店、宾馆大堂及各楼层的花瓶柱、政府的各种办公场所、家庭住宅花瓶柱选料要好。至于一些安装在顶楼的花瓶柱依据具体所处的位置选料,所选材料可以略差些。依据花瓶柱的长度(高度)尺寸选择长度合适的荒料开料。没有选择到合适的荒料时,为提高花瓶柱的出材率与客户沟通、协商,将柱头、柱座、柱身分开加工。花瓶柱长度(高度)多在700mm~1000mm,当所加工的花瓶柱在900mm~1000mm之间时出材率可能会有影响,尤其是对那些直纹理的石材,不能调整纹理方向时,对出材率影响极大的。花瓶柱又称拦河柱,因此,选择的荒料要裂纹少,不然,安装在高处的花瓶柱裂纹严重时造成花瓶的断裂,坠落可就是件麻烦事情了。从花瓶柱的高度、直径尺寸选择长度2300mm左右的荒料较为合适,荒料的高度依据加工数量而定。通常来说花瓶柱的加工数量较大,为说明花瓶柱的出材率(损耗率)计算,文中假定花瓶柱的数量为30条,那么由花瓶柱的直径确定坯料的荒度=117*30=3510,荒料的长度或宽度不可能有这么长的,假如选择的荒料高度在1400mm,那么只要1片126mm的坯料大板就可以加工30条花瓶柱。花瓶柱的由于加工工艺的要求,需要在直径或宽度、厚度方向+5mm的余量,长度方向+30mm。因此,图4花瓶柱的坯料厚度在开荒料和切板时都要加5mm~8mm左右的余量。切板时+4mm的刀路,因此花瓶柱实际切板时要按126mm切。图5为的用料规划和切板图。依据图5的切板图计算图4花瓶柱的出材率=0.117*0.7*30/(2.4*1.4)*100%=73%;损耗率=27%。
图6花瓶柱的高度为800mm,因此选择2500mm左右长度的荒料较为合适。荒料的高度依据花瓶柱的宽度100mm选择1400mm左右的荒料开坯料。花瓶柱的由于加工工艺的要求,需要在直径或宽度、厚度方向+5mm的余量,长度方向+30mm。因此,图6花瓶柱的坯料厚度在开荒料和切板时都要加7mm的余量。切板时+4mm的刀路,因此图6花瓶柱实际切板时要按111mm切板。图7花瓶柱的用料规划图和切板图。从图7花瓶柱的切板图知道一件坯料大板可以加工26件花瓶柱,因此需要2片坯料大板才能加工50件花瓶柱。依据图7数据计算出加工图6花瓶柱的出材率=0.1*0.8*50/(2.56*1.4*2)*100%=56%;损耗率=44%。0.1
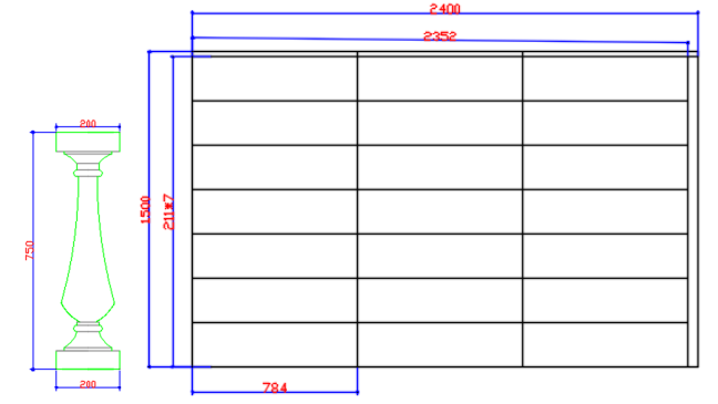
图8花瓶柱的高度为750mm,因此选择2400mm左右长度的荒料较为合适。荒料的高度依据花瓶柱的宽度200mm选择1500mm左右的荒料开坯料。花瓶柱的由于加工工艺的要求,需要在直径或宽度、厚度方向+5mm的余量,长度方向+30mm,实际切板时按784mm。因此,图8花瓶柱的坯料厚度在开荒料和切板时都要加7mm的余量。切板时+4mm的刀路,因此图8花瓶柱实际切板时要按211mm切板。图8花瓶柱的用料规划图和切板图如图9,加工图9花瓶柱50条需用2400*1500的三件坯料大板。依据图9计算出图8花瓶柱的出材率=0.75*0.2*50/(2.4*1.5*3)*100%=69.4%;损耗率=30.5%
图10为某建筑项目里的花瓶柱,由2种形式的花瓶柱构成。计算图10情况下的花瓶柱出材率。由图10知道这组拦河由3条大的花瓶柱与14条小的花瓶柱构成。从图11知道大的花瓶柱的规格尺寸为Φ200*1198;小花瓶柱的规格尺寸为Φ110*700。依据大的花瓶柱尺寸决定所选择的荒料长度,高度,由此选择荒料的长度2450,高度如果有小荒料的话,选择650mm高的荒料较合适或有边角料选择小的料头,料头长度在1250*250或1250*500为宜。还是选择2450*650的荒料开210mm厚的坯料来加工图10的花瓶柱。依据图12与图13切板图计算加工这批花瓶柱的坯料出材率。由于这批花瓶柱涉及到两种厚度,因此出材率的计算采用体积比法计算。出材率=(1.198*0.2*0.2*3+0.11*0.11*0.7*14/(0.205*2.5*0.65+0.115*2.5*0.65)*100%=0.26/0.52*100%=50%,损耗率=50%。图14为一旋转楼梯的平面图,图15为旋转楼梯上的花瓶柱,上面共有37条花瓶柱,该花瓶柱从截面看是方形的。 根据图15花瓶柱的高度,截面确定所选荒料的长度,高度。花瓶的高度800,切坯料时高度方向+30mm的余量,因此所选荒料的长度在2550mm左右较为合适;依据花瓶柱的截面180*180,坯料的厚度185,选择荒料的高度为1200mm。花瓶柱的用料规划和切板图如图16。根据图16知加工这37条花瓶柱需3件这样的大板图15的出材率分两种,一种是花瓶柱坯料的出材率,一种是荒料的出材率。坯料的出材率=(0.18*0.18*37*0.83)/(2.55*1.2*0.185*3)*100%=59%,损耗率=41%。荒料的出材率假定选择的荒料厚度为1000mm,在这种情况下荒料的出材率=(185+10)*3/1000*100%=59%,荒料的损耗率=41%。

图16
作者 | 晏辉
