
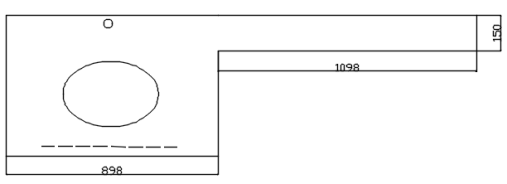
图1的开口产品因为设计的边框太窄,加之该石材裂纹多,已经断裂成了四件了。断裂成这样的产品还能用吗?使用时能保证再不断裂吗?

图1
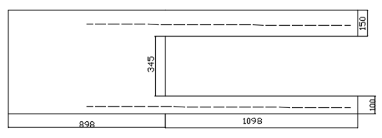
图2开U型口产品由于分段加工,加之边框的长度较短,宽度较宽没有断裂。工厂加工没有断裂,不说明施工时不断裂。
图3开U型框产品两侧的边距太窄了,无论是生产加工、施工、使用过程中都很容易断裂。因此该U型框的设计不合理。
图2 图3
石材产品开口形式很多,常见的主要为长方形口、正方形口、U型口、L型口、圆形口、椭圆形口。


石材开口产品尺寸构成要素如图7与如图8,t1、t2、t3、t4、t5。t1、t2、t3、t4是开口边到石材产品的边距。边距的宽度决定了开口产品强度;t5是水吼孔中心到开口产品的距离。
图7 图8
机械开口主要用水刀机开口、电子桥切、加工中心开口。水刀机开口灵活多样,不受开口形状、长宽规格尺寸的限制,而电子桥切机、加工中心受设备的局限性影响只能适合某些形状、规格尺寸的不口。水刀机开口之不足之处就是开口边有毛边,毛边严重的需用人工修磨开口形状。
图9 图10
关于开口产品边框究竟留多宽安全,这是很难回答,给出标准。因为石材数千种之多,理化性质、强度相差极大,还受开口产品的厚度、产品的规格尺寸、开口长宽尺寸的影响,本文无法给出t1、t2、t3、t4、t5具体标准,这是本文很遗憾之处。只能给个大致的参考意见和建议。


加固时要注意避开水吼孔的位置,不要让加固条与加固棒穿过水吼孔而影响了开口产品质量。
图15这种开有双盆孔的台面板如果边框距离小于200mm时必须考虑加固。边框距离大于200mm时视开口产品材质、厚度情况酌情考虑加固。
图14 图15
图16这种开口产品当边框宽度小于200mm时,边框长度大于500mm时肯定要加固,否则边框会断裂;当边宽宽度大于200mm,边框长度大于500mm时,视开口产品材质、厚度情况酌情考虑加固;边宽宽度在100mm~200mm之间,边宽长度小于500mm时,如果石材有裂纹需要加固。材质好的可以考虑不加固;当边宽宽度在100mm以下时,边宽长度在500mm以下时,视边框长度而定是否加固。
图16
图17这种L型产品需在拐角处加固,特别是拐角长度≧500mm时。至于≦500mm情况下是否加固,视材质和产品厚度情况酌情而定。当拐角宽度≧200mm时,视拐角长度、材质和产品厚度情况酌情而定。

图17
背面加固材料选用3mm铝板最好、不锈钢钢板、人造石材与花岗石也是加固的较好材料。


图20是L型开口产品的加固图。在拐角处可用3mm铝板或10mm人造石背贴加固。

图20
开口产品的包装、搬运非常重要。包装不当会造成开口产品的断裂;搬运不正确支导致开口产品断裂。
开口产品的搬运以立式搬运,见图23。


图23
作者 | 晏辉
