01
地面石材工程细部构造
石材加厚边施工示意图
适用范围:楼梯踏板、洗手台面等

重点说明:
为保证石材色彩、肌理的美观,台面加厚条与台面同块料中切取,切割时应从背面向上切割,背面 与背面粘结,使得拼缝处密实。
02
木地板地面细部构造
地面木板与门槛石界面收口节点
适用范围:石材与木地板、石材与铝框、木地板与铝框

重点说明:
地板与石材围边交接处需预留 3mm 地板伸缩缝,采用与地板同色系的耐候胶填缝。为防止成品受污 染及控制胶缝宽度直度,打胶时需先用美纹纸定位。
03
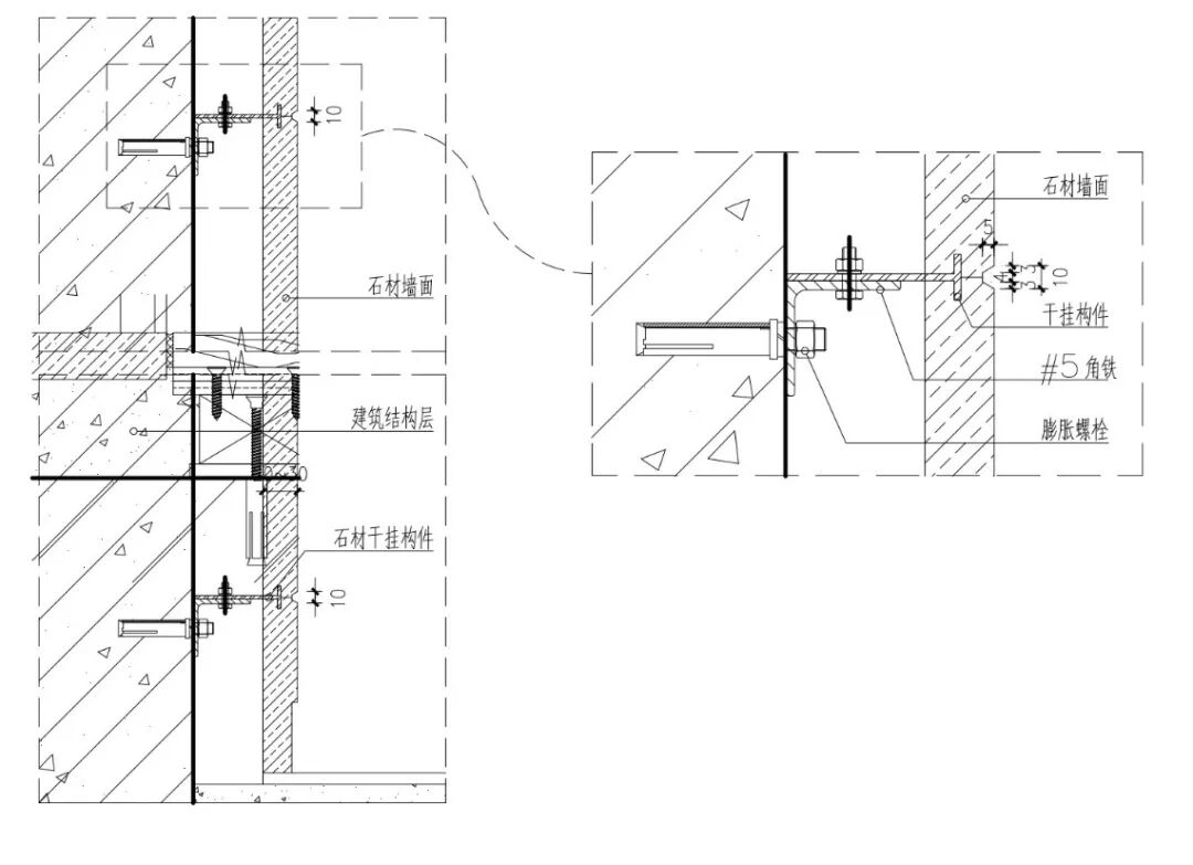
墙面石材饰面细部构造
石材干挂法施工示意图 01
适用范围:室内大厅、电梯厅等公共空间

工序:
防控制线→石材排板放线→预排石材→打膨胀螺栓→安装钢骨架→安装调节片→石材开槽→石材安装→石材填缝处理
重点说明:
1.所有型钢规格符合国家标准,热镀锌处理,焊接部位做防锈处理。不锈钢石材挂件钢号为 202 以 上、沿海项目需采用 304 钢号连接配件。
2.石材厚度要求在 20mm 以上,2500mm 高以内的墙体,竖向需采用 5#槽钢,横向采用 40mm×40mm 型角钢,间距根据石材的横缝排版确定,2500mm 高以上的墙体,竖向需采用 8#槽钢,横向采 50mm ×5mm 型角钢,间距根据石材的横缝排版确定。
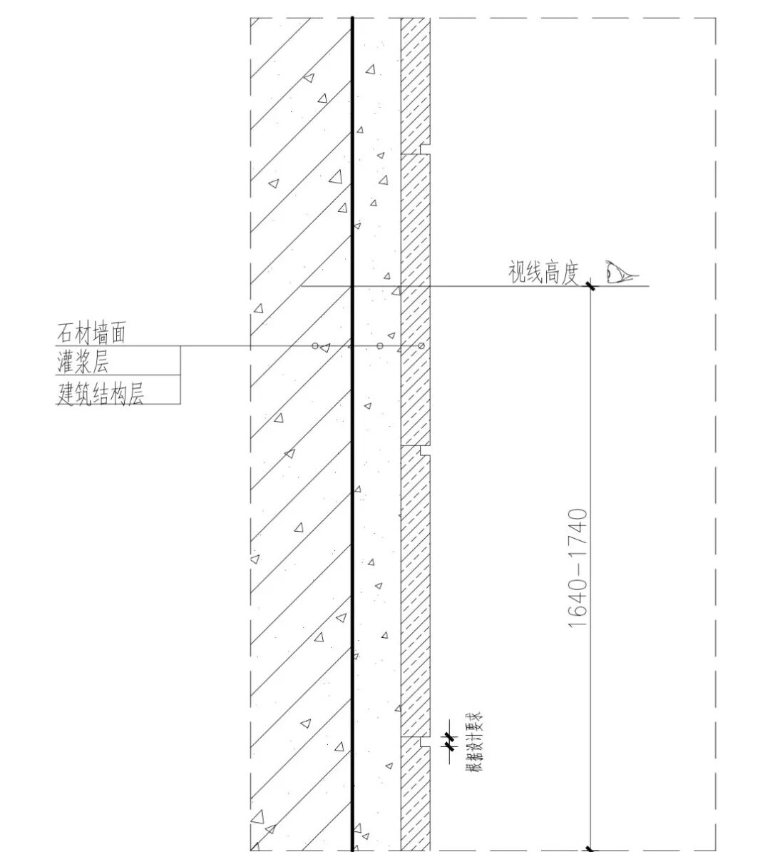
04
墙面石材饰面细部构造
墙面石材 U 型凹槽排版示意图
适用范围:室内大厅、电梯厅、卫生间等墙面

重点说明:
石材墙面横缝,需根据人体的视线高度排布
05
墙面石材饰面细部构造
墙面石材阳角收口示意图
适用范围:室内大厅、电梯厅、卫生间等墙面

重点说明:
墙面石材阳角收口均需 45 度拼接对角处理;待墙面石材全部铺贴完成后,须调制与石材同色的云石 胶作勾缝处理,勾缝必须严密;墙面石材阳角按设计要求加工。
06
墙面石材饰面细部构造
墙面石材阴角收口示意图
适用范围:室内大厅、电梯厅、卫生间等墙面

重点说明:
石材墙面有横缝时(如 V 字缝、凹槽)时,阴角收口均需 45°(角度稍小于 45°,以利于拼接)拼 接对角处理,应在工厂内加工完成。
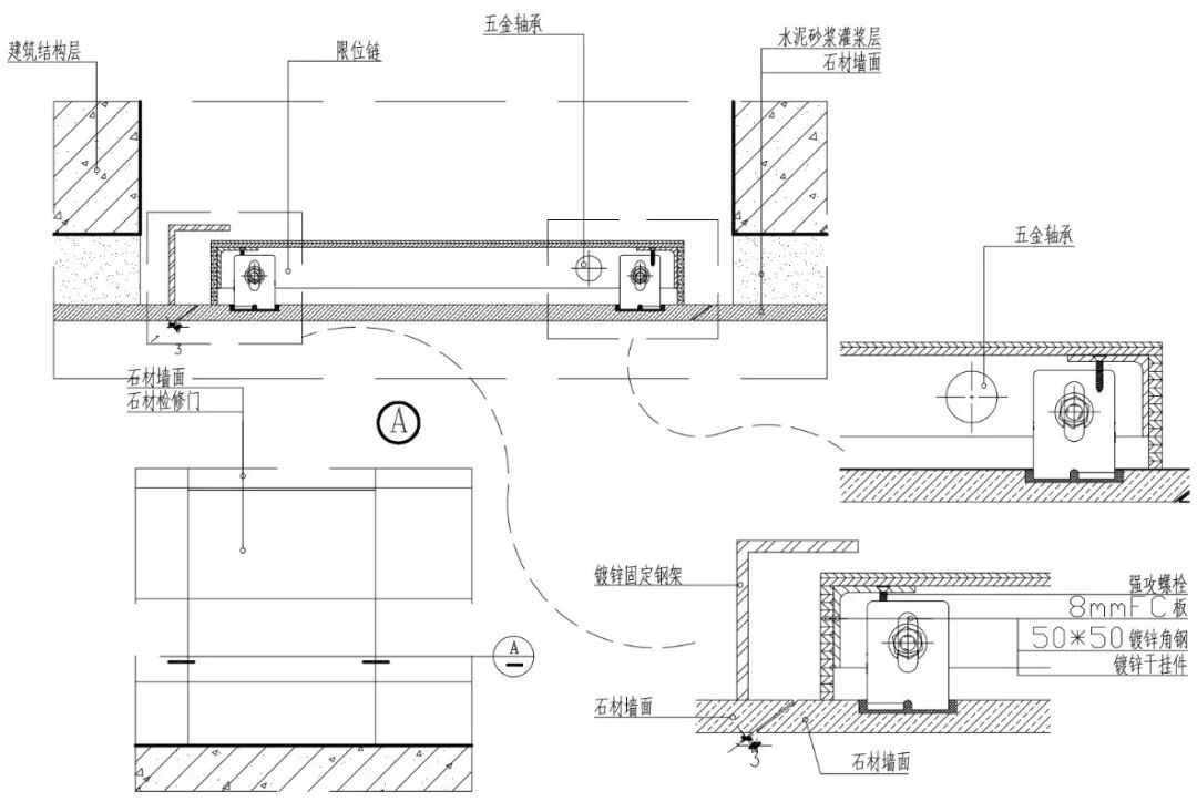
07
墙面石材饰面细部构造
石材检修门示意图
适用范围:室内电梯厅、大厅、走道等

重点说明:
1.石材暗门需采用热镀锌角钢,角钢大小及滚珠轴承大小根据门体的自重选定,焊接部位作防锈处理。
2.石材干挂或安装、门边、框边切割面需抛光处理,钢架面采用防潮板包封。为防止门与边框碰撞, 会使石材破损,需在门与框之间安装限位链。
08
墙面石材饰面细部构造
钢架台盆安装示意图
适用范围:卫生间下装台盆

工序:
放样→管线安装→基架焊接→基架墙面固定→石材工厂加工→台盆固定→现场安装
重点说明:
1.台盆铁架须采用国标镀锌角钢,焊接处做防锈处理。
2.为便于台盆拆卸检修,台盆固定于固定构件上,固定构件与石材垫块用不锈钢或镀锌螺栓固定, 垫块背面及台面背面粘结部位需经打毛处理用大理石胶粘结固定,台盆与固定构件连接处需用橡 皮垫块,台盆与台面板下沿口用耐候胶密封。
09
墙面石材饰面细部构造
台下柜台盆安装示意图
适用范围:卫生间下装台盆

工序:
放样→管线安装→木基架工厂制作→石材工厂加工→台盆固定→组合安装
重点说明:
为便于台盆拆卸检修,台盆固定于固定构件上,固定构件与台下柜基板面φ8mm 对穿螺丝固定, 台盆与固定构件连接处需用橡皮垫块,台盆与台面板下沿口用耐候胶密封。